Noordwal 17, Delden

430.000 k.k.

Kenmerken van de woning

  • Adres Noordwal 17
  • Plaats Delden
  • Prijs 430.000 k.k.
  • Postcode 7491 BH
  • Bouwjaar 1979
  • Volume 396 m³
  • Tuinligging Zuid
  • Perceeloppervlakte 149 m²
  • Woonoppervlakte 101 m²
  • Tuinoppervlakte 72 m²
  • Verdiepingen 3
  • Kamers 3
  • Slaapkamers 2
Video
360° foto's
Plattegrond
Brochure

Over de woning

Gelegen in een charmant straatje, met een eigen garage en alles op loopafstand

Wonen in het centrum van Delden, met de rust van een charmant straatje en de natuur van Landgoed Twickel om de hoek. Aan de Noordwal 17 vind je precies die combinatie. Hier loop je ’s ochtends zo naar de winkels voor verse broodjes en sta je even later tussen het groen. Een plek waar gemak en sfeer vanzelf samenkomen.

Deze woning is ideaal als je een fijne, centrale plek voor het gezin zoekt of nog niet toe bent aan een appartement. Je woont compact, maar met verrassend veel ruimte. De woonkamer is licht en kijkt uit op de zonnige tuin. De half open, handgemaakte keuken is netjes onderhouden. Boven vind je twee slaapkamers, waarvan één royale kamer die eenvoudig weer is terug te brengen naar twee slaapkamers. De zolder biedt extra mogelijkheden. Met een vaste trap maak je hier moeiteloos een extra kamer of werkplek.

De tuin ligt op het zuiden en is besloten. Met een achterom naar het pleintje met garages en je eigen garage direct achter de woning. Parkeren kan bovendien voor de deur. Hier woon je centraal, maar met privacy en rust. Precies wat je zoekt als je comfortabel wilt wonen in het hart van Delden.

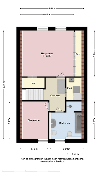
Indeling

Begane grond:
Hal met toilet, lichte woonkamer met eethoek en trapkast, half open keuken voorzien van koel-/vriescombinatie, oven, vaatwasser, afzuigkap en (vernieuwde) inductiekookplaat.

1e verdieping:
Overloop, was-/stookruimte, badkamer met wastafel, bidet, douche, toilet en ligbad, slaapkamer en grote slaapkamer met veel kastruimte (voorheen twee slaapkamers).

Zolder:
Via vlizotrap bereikbaar, met stahoogte en mogelijkheid voor vaste trap en extra slaapkamer(s).

Buiten:
Besloten en zonnige tuin op het zuiden met achterom naar eigen garage achter de woning, extra parkeerplaatsen direct voor de deur.

Bijzonderheden:
* Het bouwjaar van de woning is 1979;
* Het woonoppervlakte bedraagt ca. 101 m²;
* De perceeloppervlakte bedraagt ca. 149 m²;;
* Met energielabel C ;
* Buitenschilderwerk 2025;
* Met eigen garage met roldeur;
* Met mogelijkheid voor 3 of meer slaapkamers:
* Gelegen aan de rand van het centrum;
* Gelegen op loopafstand van Landgoed Twickel;
* Charmante ligging en besloten tuin.

Belangrijke informatie:
* Deze woning wordt aangeboden met een bouwtechnisch rapport;
* In de koopakte zal i.v.m. de leeftijd van de woning een ouderdomsclausule worden opgenomen;
* Een bankgarantie/waarborgsom van 10% van de koopsom is vereist.

Plan een bezichtiging

Selecteer een dagdeel (optioneel)

* is verplicht

Of breng een bod uit
5 min. loop afstand       5 min. fiets afstand

Voorzieningen


Openbaar Vervoer


Overig


Eigen woning nog niet verkocht?

Vraag een verkoopgesprek aan