Steinwegstraat 4, Delden

515.000 k.k.

Kenmerken van de woning

  • Adres Steinwegstraat 4
  • Plaats Delden
  • Prijs 515.000 k.k.
  • Postcode 7491 KD
  • Bouwjaar 1978
  • Volume 665 m³
  • Tuinligging West
  • Perceeloppervlakte 321 m²
  • Woonoppervlakte 167 m²
  • Tuinoppervlakte 140 m²
  • Verdiepingen 3
  • Kamers 5
  • Slaapkamers 3
Video
360° foto's
Plattegrond
Brochure

Over de woning

Verrassend ruime geschakelde woning gelegen in een rustig straatje

Hier woon je royaal, comfortabel én in een rustig kleinschalig wijkje. Aan de Steinwegstraat 4 staat deze verrassend ruime geschakelde woning (ca. 167 m² woonoppervlak, 665 m³ inhoud) met inpandige garage, bijkeuken en een diepe, groene achtertuin met grote overkapping (2023). Binnen is het licht en prettig ingedeeld: een woonkamer met haardpartij en extra zithoek, een open keuken, drie volwaardige slaapkamers plus een inloopkast met een mogelijkheid voor een 4e slaapkamer én een 2e verdieping met vaste trap. De woning is recent technisch gerenoveerd met o.a. een Remeha HR-ketel (02-2023), 8 zonnepanelen (2023) en een vernieuwde meterkast (2023). Met daarbij energielabel C, dak- en spouwisolatie en grotendeels dubbel glas is dit een zorgeloze gezinswoning waar je zó in kunt trekken. De kavel van 321 m² biedt bovendien veel privacy en fijne buitenruimte in de zonnige tuin. Direct aan de woonkamer ligt een terras en de brede, groene achtertuin biedt veel privacy en is voorzien van een ruime overkapping (2023) – een heerlijke plek om van het vroege voorjaar tot laat in het najaar buiten te zitten. Het huis in lekker centraal in Delden gelegen waardoor alle faciliteiten altijd op korte afstand zijn zoals scholen, sport en ook het centrum, het trein- en busstation en het buitengebied zijn snel bereikbaar.

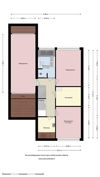
Indeling
Begane grond: entree/hal met garderobe en toilet. Open,moderne keuken, eethoek en lichte woonkamer met sfeervolle haard en extra zithoek aan de tuinzijde. Bijkeuken met toegang tot de inpandige garage.

1e verdieping: overloop, slaapkamers met o.a. zeer ruime (ouder)slaapkamer boven de garage. Badkamer met vloerverwarming, inloopdouche, ligbad, wastafelmeubel en 2e toilet. Een inloopkast met mogelijkheid voor 4e slaapkamer en een stook/wasruimte.

Tweede verdieping
Via vaste trap bereikbaar: overloop en praktische bergruimte met veel daglicht.

Bijzonderheden:
* De woning is gebouwd in 1978
* De kavelgrootte is 321m2;
* Het woonoppervlak is ca 167m2;
* De inhoud bedraagt ca. 665 m3;
* Met Remeha HR 2023;
* Met 8 zonnepanelen;
* Met Energielabel C ;
* Met dak- en spouwisolatie;
* Verrassend ruim en praktisch ingedeeld;
* Centraal gelegen in Delden;

Plan een bezichtiging

Selecteer een dagdeel (optioneel)

* is verplicht

Of breng een bod uit
5 min. loop afstand       5 min. fiets afstand

Voorzieningen


Openbaar Vervoer


Overig


Eigen woning nog niet verkocht?

Vraag een verkoopgesprek aan