Kievitstraat 22, Delden

660.000 k.k.

Kenmerken van de woning

  • Adres Kievitstraat 22
  • Plaats Delden
  • Prijs 660.000 k.k.
  • Postcode 7491 CN
  • Bouwjaar 1968
  • Volume 696 m³
  • Tuinligging Zuid
  • Perceeloppervlakte 505 m²
  • Woonoppervlakte 201 m²
  • Tuinoppervlakte 263 m²
  • Verdiepingen 3
  • Kamers 6
  • Slaapkamers 5
Video
360° foto's
Plattegrond
Brochure

Over de woning

Ruime vrijstaande woning met grote, lichte leefruimtes, moderne keuken en zonnige tuin op het zuiden.

In een rustige en groene woonwijk in Delden staat deze verrassend ruime vrijstaande woning met een woonoppervlak van circa 154 m² op een perceel van 505 m². De woning biedt volop ruimte voor het hele gezin, met 5 slaapkamers, een lichte tuinkamer en een heerlijke tuin waar het van vroeg tot laat genieten is van de zon. De sfeer in huis is warm en eigentijds. Grote raampartijen zorgen voor veel lichtinval, terwijl de tuinkamer met glazen dak een directe verbinding legt tussen binnen en buiten. De moderne (eet)keuken is vernieuwd in 2023 en grenst aan de woonkamer.

Het perceel beschikt over een brede oprit met parkeerruimte voor meerdere auto’s en een ruime garage. Achter de woning ligt een royale, groene tuin op het zuiden met veel privacy, zon en verschillende zitplekken. De ligging is prettig, in een rustige wijk met veel groen, op loopafstand van scholen, sportvoorzieningen en het gezellige centrum van Delden. Ook Landgoed Twickel ligt op korte afstand: perfect voor een wandeling of fietstocht door de natuur.

Kortom: een heerlijk familiehuis met ruimte, licht en comfort, op een fijne plek in Delden.

Indeling:
Begane grond: entree met hal, garderobe, toilet en trapopgang. Moderne keuken (2023) met luxe inbouwapparatuur, ruime woonkamer met grote raampartijen en houtkachel, tuingerichte eet-/zitkamer met glazen dak.

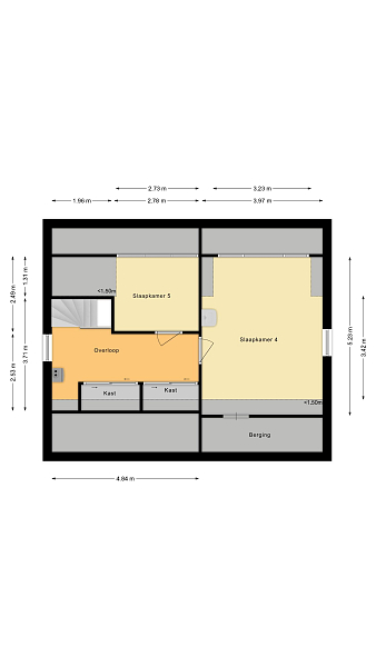
1e verdieping: overloop, 3 slaapkamers met inbouwkasten, waskamer, separaat toilet en badkamer met douche en wastafel. Vanuit de badkamer toegang tot het dakterras.

2e verdieping: vaste trap naar de overloop met kastruimte en 2 slaapkamers met dakkapel, waarvan één met wastafel.

Bijzonderheden:
* Het bouwjaar van de woning is 1968;
* Het woonoppervlak is ca. 201m2;
* De inhoud van de woning is ca. 663m3;
* De perceeloppervlakte bedraagt ca. 505m2;
* Met energielabel C;
* Met vloer-, spouw- en dakisolatie;
* Met dubbel glas, waaronder HR++ op de 1e verdieping;
* Met Nefit HR, eigendom;
* Met 6 zonnepanelen;
* Zolder gerenoveerd, vloeren geïsoleerd, dakje dakkapel vervangen;
* Meterkast en elektra vernieuwd.

Belangrijke informatie:
* In de koopakte zal i.v.m. de leeftijd van de woning een ouderdomsclausule worden opgenomen;
* Een bankgarantie/waarborgsom van 10% van de koopsom is vereist.

Plan een bezichtiging

Selecteer een dagdeel (optioneel)

* is verplicht

Of breng een bod uit
5 min. loop afstand       5 min. fiets afstand

Voorzieningen


Openbaar Vervoer


Overig


Eigen woning nog niet verkocht?

Vraag een verkoopgesprek aan